Montage
Het lijkt eenvoudig: een plafondlift bevestig je aan het plafond. Dat klopt in de basis, maar de manier waarop verschilt. Niet elk plafond is hetzelfde opgebouwd. Er bestaan verschillende soorten plafondconstructies, en soms is het niet eens het type plafond dat bepaalt hoe er bevestigd moet worden, maar de situatie of belasting. Daarom is het belangrijk om de mogelijkheden goed op een rij te zetten.

De standaardmethode van bevestigen
In de meeste gevallen wordt een plafondrail bevestigd met een steun tegen het plafond. Sommige leveranciers monteren de plafondrail om de meter met slechts één bout in het plafond. Vanuit veiligheidsperspectief verdient het echter de voorkeur om per bevestigingssteun twee bouten te gebruiken in plaats van één.
Een plafondlift moet voldoen aan strenge veiligheidseisen, en de gebruiker moet altijd kunnen vertrouwen op de stabiliteit van het systeem. Met een bevestiging met twee bouten per steun is er extra zekerheid: mocht één bout onverhoopt onvoldoende verankerd zijn, dan zorgt de tweede bout ervoor dat de constructie toch veilig blijft. Dit biedt maximale veiligheid voor de gebruiker én borgt de betrouwbaarheid van het systeem.
Bevestiging aan een betonnen plafond
Wanneer de bevestigingssteun direct op een betonnen plafond kan worden gemonteerd, gebruikt bijvoorbeeld Tiltechniek uit Waalwijk metrische M10-bouten die worden verankerd in een messing plug. Dit werkt volgens het keilboutprincipe, waarbij slechts een minimale boordiepte van ongeveer 35 mm nodig is voor een veilige en stabiele verankering. Dit is een groot voordeel, omdat moderne betonnen plafonds vaak maar beperkte boordiepte toelaten. De messing plug biedt in die situaties een uitstekende oplossing.
Ook chemische ankers worden toegepast bij betonnen plafonds. Deze methode resulteert echter in een permanente bevestiging, die moeilijk aan te passen of te verwijderen is zonder schade aan het plafond. Daarom verdient een mechanische bevestiging met messing pluggen in veel gevallen de voorkeur.
Verlaagde montage
Soms is het nodig om de rails iets verlaagd te monteren, bijvoorbeeld wanneer cv-leidingen, ventilatieroosters of verlichting in de weg zitten. In dat geval worden opvulplaatjes gebruikt met een dikte van enkele centimeters. Deze plaatjes hebben precies de vorm van de bevestigingssteun en vallen daardoor nauwelijks op.
Wanneer een grotere verlaging nodig is, gebruikt Tiltechniek witte kunststof blokken. Deze worden op maat besteld en zorgen voor een nette afwerking die aansluit bij het ontwerp en de stijl van het plafondrailsysteem.

Bevestiging aan een gipsplafond of plafond met houten balken
Plafonds met houten balken komen vaak voor, zowel in bestaande woningen als in uitbouwen of aanbouwen. Veelgebruikte balkmaten zijn 70×170 mm, maar zowel zwaardere als lichtere constructies komen regelmatig voor. Dit type plafond is over het algemeen stevig genoeg om een plafondrail dwars of in de lengterichting onder de balken te bevestigen. Hiervoor worden hout draaibouten met dikte M10 gebruikt om de bevestigingssteunen direct aan de balk te monteren.
Uitdagingen in de praktijk
Een plafondrailsysteem bestaat bijna nooit alleen uit rechte delen. De rails moet verschillende transferpunten verbinden en loopt daarom niet altijd precies in de richting van de houten balken. Bovendien zijn er vaak bochten, draaiwissels en afslagwissels nodig. De bevestigingspunten hiervoor vallen vrijwel nooit exact onder een balk.
Veel balkenplafonds zijn destijds aangelegd zonder rekening te houden met de mogelijkheid van een toekomstig plafondliftsysteem. Het is immers onmogelijk vooraf te bepalen waar later transferpunten voor tillen en verplaatsen nodig zullen zijn. Daarom moet een plafond met houten balken in de meeste gevallen worden aangepast of verstevigd om alle noodzakelijke bevestigingssteunen veilig te kunnen monteren.
Bevestiging aan een gipsplaten plafond
Voor gipsplaten plafonds geldt in feite hetzelfde als bij plafonds met houten balken. Het is vaak niet duidelijk waar de balken precies lopen, of er op een bepaalde plek überhaupt een balk aanwezig is. Een bouwtekening kan meestal wel de richting van de balken aangeven, maar niet altijd de onderlinge afstand of het exacte aantal balken.
Noodzaak van versteviging
Wanneer er in het railtraject bochten, draaiwissels of afslagwissels nodig zijn, moet er vaak een versteviging worden aangebracht tussen de balken. Deze versteviging bestaat doorgaans uit 40 mm dik watervast verlijmd multiplex van hardhout. De verstevigingsplaat wordt aangebracht tot aan de onderzijde van de balklaag. De leverancier van de plafondlift kan precies aangeven waar deze versterking moet worden geplaatst.

Aandachtspunten bij gipsplaten
Bij een gipsplaten plafond is het van groot belang dat de versteviging direct aansluit op de gipsplaten. Er mag geen open ruimte zitten tussen de verstevigingsplaat en de gipsplaat. Dit voorkomt dat de gipsplaat wordt ingedrukt bij het aandraaien van de houtdraaibouten waarmee de bevestigingssteun van de plafondrails wordt gemonteerd.
Aanbrengen van verstevigingen
In veel gevallen is het noodzakelijk om het gehele gipsplaten plafond te verwijderen om verstevigingen tussen de balken te kunnen plaatsen. Soms kan een gedeelte plaatselijk worden geopend, waardoor het aannemerswerk beperkt blijft. Wanneer het railtraject nog niet exact bekend is, of wanneer het gebruik van een plafondlift pas in de toekomst wordt verwacht, is het verstandig om het volledige plafond te verstevigen met 40 mm dik watervast verlijmd hardhout. Deze extra investering verdient zich terug doordat later ingrijpende aanpassingen, kosten en overlast worden voorkomen.
Inbouwen van de plafondrails in een gipsplafond
Regelmatig wordt de wens geuit om de plafondrails mooi weg te werken of in te bouwen in het gipsplafond. Dit zorgt voor een fraai en rustig uiterlijk, omdat de rail minder zichtbaar is. Wat echter niet over het hoofd mag worden gezien, is dat bij de periodieke keuring en het onderhoud van de plafondlift ook de bevestigingspunten én de onderliggende constructie gecontroleerd moeten kunnen worden. Dat betekent dat de ruimte boven het gipsplafond toegankelijk moet blijven of eenvoudig geopend moet kunnen worden.
Een veelvoorkomend probleem is dat ook de uiteinden van de plafondrail volledig zijn ingebouwd. Hierdoor kan de plafondmotor niet zonder schade aan het gipsplafond worden verwijderd of vervangen. Een praktische oplossing is het aanbrengen van een uitneembaar inspectieluik aan het einde van het railtraject, zodat de motor en de rail toegankelijk blijven.
Bevestiging aan een holle broodjesvloer
In België komt dit type plafond vaker voor dan in Nederland. Een holle broodjesvloer of plafond bestaat uit betonnen liggers met daartussen holle bouwstenen (de zogenoemde broodjes). Deze constructie is een snelle en efficiënte manier om een betonnen vloer of plafond met een bepaalde mate van isolatie te creëren.
Wanneer het plafond is afgewerkt en gestukt, zijn de betonnen liggers niet meer zichtbaar. Dit maakt het lastig om de juiste bevestigingspunten te bepalen. Bij het boren voor de plafondrails wordt vaak per ongeluk in de holle bouwstenen geboord. Deze harde, keramische elementen zijn echter niet geschikt voor messing slagpluggen, keilbouten of standaard pluggen. Ze bieden onvoldoende draagkracht voor het veilig monteren van een plafondrailsysteem.

Bevestiging met chemische ankers
Bij een holle broodjesplafond is het gebruik van een chemisch anker de meest betrouwbare bevestigingsmethode. Deze methode zorgt ervoor dat de verankering een maximaal draagvermogen heeft. Omdat het tilvermogen van een plafondmotor vaak ruim boven de 200 kg ligt, moet bij elke bevestigingssteun worden uitgegaan van dit maximale tilgewicht – ongeacht het daadwerkelijke gewicht van de gebruiker. De veiligheidseisen van de installatie zijn hierin leidend.
Ook hier verdient een bevestiging met twee bouten per steun de voorkeur boven bevestiging met slechts één bout. Dit biedt extra zekerheid wanneer één van de verankeringen onverhoopt minder goed vastzit. Indien tijdens het boren duidelijk wordt dat men een betonnen ligger raakt, kan er wel gebruik worden gemaakt van een messing plug of een andere geschikte mechanische plug.

Bevestiging van plafondrails in een systeemplafond
Een systeemplafond wordt veel toegepast in zorginstellingen en bedrijfsgebouwen, maar komt steeds vaker ook voor in particuliere woningen. Het biedt akoestische voordelen, een moderne uitstraling en maakt het eenvoudig om verlichting, leidingen en andere installaties weg te werken.
De ruimte tussen het systeemplafond en het bovenliggende plafond kan variëren van enkele centimeters tot meer dan een meter. Dit maakt het bevestigen van een plafondlift extra uitdagend. Een systeemplafond bestaat uit een licht metalen frame met losse plafondplaten, die geen draagconstructie vormen en dus niet geschikt zijn om een plafondrails aan te bevestigen.
De plafondlift moet daarom worden opgehangen aan de constructie van het bovenliggende plafond. Dit gebeurt met draadeinden of met op maat gemaakte ondersteuningspalen, waarmee de plafondrails precies ter hoogte van het systeemplafond wordt gepositioneerd. De leverancier bepaalt hierbij de juiste ophangmethode op basis van de beschikbare ruimte en de constructie.

Inbouw van plafondrails in een systeemplafond
Net als bij gipsplafonds is er vaak de wens om de plafondrail in het systeemplafond weg te werken. Dit zorgt niet alleen voor een strakker en minder opvallend uiterlijk, maar biedt ook meer tilhoogte. Wel is het belangrijk om altijd rekening te houden met het feit dat de bevestigingspunten van de plafondrails toegankelijk moeten blijven voor inspectie en onderhoud. Dit betekent dat de losse plafondplaten regelmatig gelicht moeten kunnen worden.
Wanneer verlaagde montage vanaf het bovenliggende plafond, door het systeemplafond heen, niet mogelijk is, kan het lastig zijn een veilige plafondbevestiging te realiseren. In dat geval kan een alternatief zijn om de plafondlift niet aan het plafond, maar aan de wanden van de ruimte te bevestigen.
Zwevende plafondlift met bevestiging van muur tot muur
In sommige situaties is het onmogelijk of ongewenst om een plafondlift aan het plafond te bevestigen. Dit komt bijvoorbeeld voor in monumentale panden of wanneer technische aanpassingen zeer complex of kostbaar zouden zijn, waardoor een plafondlift aanzienlijk duurder wordt dan een verrijdbare tillift.
Als de muren of zijwanden voldoende draagkracht hebben, kan een zogenaamd muur-tot-muur plafondrailsysteem worden toegepast. Hierbij wordt de plafondrail met hoeksteunen tussen twee tegenoverliggende muren gemonteerd, zonder bevestiging aan het plafond.
Een muur-tot-muur constructie heeft wel als gevolg dat er iets tilhoogte verloren gaat. Dit komt doordat de speciale rails die hiervoor wordt gebruikt hoger is dan de standaard plafondrail. Dit extra profiel is nodig om doorbuigen te voorkomen bij grotere overspanningen. Ook bij dit systeem wordt uitgegaan van het maximale tilgewicht van de plafondlift, bijvoorbeeld 200 kg, zodat de veiligheid altijd is gegarandeerd.

Veiligheid en stevigheid van een plafondlift
De veiligheid van een plafondlift is heel belangrijk. Het gaat tenslotte om het tillen van mensen. Daarom werken fabrikanten, zoals Handi-Move, met hele strenge eisen. De plafondrail mag bijna niet doorbuigen. Dat is niet alleen nodig voor de veiligheid, maar het moet er ook stevig uitzien. Mensen voelen zich veiliger als het systeem er robuust en betrouwbaar uitziet. Liever wat sterker en zwaarder uitgevoerd dan te dun of licht.
Bevestiging aan de muren
De leverancier van de plafondlift kijkt of de muren stevig genoeg zijn om een plafondrail van muur tot muur aan te bevestigen. Soms is dit een goedkopere oplossing dan een constructie aan het plafond maken.
Twee manieren om aan de muur te bevestigen
Er zijn nu twee mogelijkheden:
- Muur tot muur (overdwars)
- Langs de muur
De bevestiging langs de muur wordt vaak gebruikt bij een x-y plafondrailsysteem omdat dit er strak en netjes uitziet. Toch wordt in de praktijk meestal gekozen voor de muur-tot-muur methode. Dit komt bijvoorbeeld doordat er een verbinding nodig is met een vaste rail, of omdat de muren niet allemaal even goed gebruikt kunnen worden.
Uitdagingen bij montage van een plafondlift
Infrarood verwarmingspanelen aan het plafond
Voor een gelijkmatige warmteverdeling worden soms infraroodpanelen aan het plafond geplaatst. Een slimme oplossing, maar lastig te combineren met een plafondlift. Het railtraject van de plafondlift wordt namelijk bepaald door de gewenste transferpunten, en dat traject moet leidend zijn en zo effectief mogelijk aan elkaar verbonden. Obstakels zoals infraroodpanelen moeten waar mogelijk buiten dit traject worden geplaatst. Bij gebruik van een traversesysteem kan de leverancier de beweegbare rails eventueel iets verlaagd installeren, zodat de lift onder de panelen door kan glijden.
Brandbeveiliging of ventilatie
In veel gebouwen zijn centrale ventilatiesystemen of afzuigpunten in de doucheruimte aanwezig, vaak gemonteerd met een opbouwdeel dat soms wel 5 tot 6 cm uitsteekt vanaf het plafond. Zit zo’n ventilatiepunt precies boven de douchehoek of het toilet, dan moet de plafondlift hierop worden aangepast. Dit kan bijvoorbeeld door de rail iets lager te installeren met draadeinden of op maat gemaakte blokken, zodat de plafondrail netjes onder het ventilatiepunt doorloopt.
Douchegordijn
Een vaak vergeten obstakel bij het plaatsen van een plafondlift in de badkamer is het douchegordijn. Wanneer de plafondlift ook het douchezitje moet bereiken, kan de gordijnstang in de weg zitten. De plafondmotor glijdt er meestal wel overheen, maar het hijslint waar je aanhangt niet. De oplossing is vaak eenvoudig: twee gescheiden douchestangen met aparte gordijnen. Een kleine aanpassing die wel belangrijk is voor goed gebruik van de lift.
Bovenlichten boven deuren
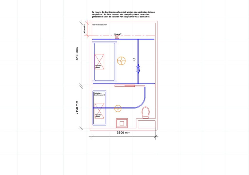
Een van de grootste obstakels voor een doorlopende rails tussen twee of meerdere ruimtes is het bovenlicht boven de deur. Voor een doorlopende plafondrail moet dit deel (glas, hout of steen) volledig verwijderd worden, zodat de rail op plafondhoogte waterpas kan worden geïnstalleerd. Naast de efficiëntie van het gebruik van de plafondlift is het maximale tilbereik de belangrijkste reden het bovenlicht zo volledig mogelijk in de hoogte te verwijderen.
Er bestaan alternatieven waarbij de plafondmotor losgekoppeld en weer vastgemaakt kan worden aan twee railtrajecten aan weerszijden van de deur. Dit is complexer en heeft meer tijd nodig om een transfer tussen twee ruimten uit te voeren. Simpelweg omdat de handeling van het los en vastkoppelen van de plafondmotor tussen de twee ruimten arbeidsintensief en nooit over te slaan is.
Het werkt alleen met hulp van een zorgverlener, nooit bij zelfstandig gebruik. Een zogenaamde overpakoplossing kan aantrekkelijk lijken voor gemeenten die bouwkundige kosten willen vermijden. Echter bij zelfstandig gebruik van de plafondlift is dit nooit een geschikte oplossing. Voor gebruik met hulp kan het een betaalbare oplossing zijn, maar praktisch gezien is het minder ideaal.


Lichtpunt of plafondventilator
Veel slaapkamers hebben precies boven het bed een lichtpunt, soms zelfs uitgevoerd met een plafondventilator. Dit kan in de weg zitten wanneer ook een plafondrails boven het bed moet komen. Bij een monorail kan het lichtpunt soms blijven zitten, maar vaak moet het verplaatst worden. Bij een traverse systeem moet het lichtpunt vaak worden beperkt tot maximaal 10 à 12 cm vanaf het plafond om de beweegbare rail te laten passeren. Samen met de plafondlift leverancier kan worden bekeken of het lichtpunt buiten het traject geplaatst kan worden, of dat de plafondventilator hergebruikt kan worden.
Papegaai aan het bed
Een papegaai boven het bed helpt bij jezelf positioneren, maar botst vaak met het railtraject van een plafondlift. De rails wordt meestal dwars over het bed geplaatst, op ongeveer 105 cm vanaf het hoofdeind. Precies daar steekt de metalen arm van de papegaai uit. In veel gevallen betekent dit dat de papegaai moet wijken of verwijderd moet worden. Soms kan de plafondlift de functie deels overnemen, maar meestal gaat dat niet volledig op.
Aansluiting op een traplift
Wanneer je vanuit een traplift direct verder getild wilt worden met een plafondlift op de verdiepingsvloer, is de positie van de rails cruciaal. Het is van belang dat de plafondrail zover mogelijk boven je hoofd gepositioneerd kan worden. Vaak loopt het plafond niet ver genoeg door boven de trapliftstoel, waardoor de aansluiting lastig wordt. Of anders gezegd; loopt de transportrail van de traplift niet ver genoeg door tot onder het vlakke deel van het plafond. Een oplossing kan zijn om de plafondrail iets te verlagen bij de eerste traptrede, zodat de plafondmotor verder kan doorsteken. In combinatie met een excentrisch geplaatst hijslint – zoals bijvoorbeeld bij de plafondmotoren van Handi-Move – kan zo toch een goede aansluiting met de traplift gerealiseerd worden.

Plafondlift in een prefab aanbouw of zorgunit
Steeds vaker wordt er door gemeenten gekozen voor een zorgunit of prefab aanbouw. Dit is vanuit kostentechnisch oogpunt vaak een aantrekkelijke oplossing: de units zijn snel te plaatsen en kunnen, indien nodig, ook weer verplaatst worden.
Deze zorgunits zijn echter niet altijd constructief berekend op het gebruik van een plafondlift die aan het plafond wordt bevestigd. De dakconstructies zijn doorgaans licht uitgevoerd en ontworpen voor standaardbelasting. Ophangpunten die een draagvermogen van minimaal 200 kg aankunnen, zijn meestal niet meegenomen in de berekeningen. Omdat plafondliften vaak een tilcapaciteit van 200 kg hebben, moet de constructie per ophangpunt minimaal dit gewicht veilig kunnen dragen.
Wanneer er wordt gekozen voor een prefab aanbouw of zorgunit, is het daarom essentieel om de leverancier van de plafondlift al in een vroeg stadium bij het ontwerp te betrekken. Dan kunnen er tijdig aanpassingen in de constructie worden doorgevoerd. Ook elementen zoals verlichting, een airco of een standaard schuifdeur kunnen het gebruik van een plafondlift belemmeren.
Prefab zorgunits zijn meestal opgebouwd uit hout. Dit vraagt om extra aandacht bij het veilig ontwerpen en monteren van een plafondlift. Voor de fabrikant van de unit is het niet mogelijk om standaard rekening te houden met alle verschillende wensen en toepassingen. Bovendien vereist een monorail vaak een andere versteviging dan een x-y plafondrailsysteem. Het type railsysteem heeft dus direct invloed op de benodigde constructieve aanpassingen.

